MOET VAN BINNEN GEZIEN WORDEN!
Deze verrassend ruime en goed onderhouden tussenwoning met aanbouw is gelegen in een rustige woonomgeving in de wijk Lindenheuvel. In de directe omgeving bevinden zich diverse voorzieningen, zoals een basisschool, supermarkt en de Bloemenmarkt. Daarnaast heeft het een uitstekende verbinding naar diverse uitvalswegen richting Eindhoven, Maastricht, alsook Duitsland en België. De woning is gebouwd omstreeks 1950 en beschikt over een moderne meterkast, kunststof kozijnen met isolerende beglazing, airconditioning, rolluiken, vloer-, spouw- en dakisolatie, gevel is gereinigd en gevoegd in 2018 en 11 zonnepanelen geplaatst (2022, eigendom). De HR-combiketel (Nefit, gehuurd van Hesi, koper wordt geacht het huurcontract over te nemen) is geplaatst in 2024. Het perceel is 177 m² groot met een leuk aangelegde, gezellige achtertuin, gunstig gelegen op het zuidoosten. De tuin is tevens achterom bereikbaar via een pad.
De woning heeft een inhoud van circa 406 m³ en een woonoppervlakte van 112 m².
Indeling
Souterrain: 3.50 x 2.15 provisieruimte.
Begane grond: entreehal met meterkast; toilet met fonteintje; L-woonkamer 6.65 x 6.00/3.75 met laminaatvloer en schouw met aansluiting voor een kachel; aanbouw met grindvloer, airconditioning en eetkeuken (ca. 24m²) met aanbouwkeuken voorzien van 5-pits gasfornuis, afzuigkap, koelkast, heteluchtoven, vaatwasser; vanuit de keuken heeft men toegang naar de tuin; bijkeuken met aansluiting voor wasmachine.
Eerste verdieping, voorzien van laminaat-vloer (m.u.v. badkamer): overloop met airconditioning; drie slaapkamers 3.75 x 2.95; 3.60 x 3.05; 2.80 x 2.45 met muurkast; badkamer met ligbad voorzien van douchescherm en wastafel met meubel.
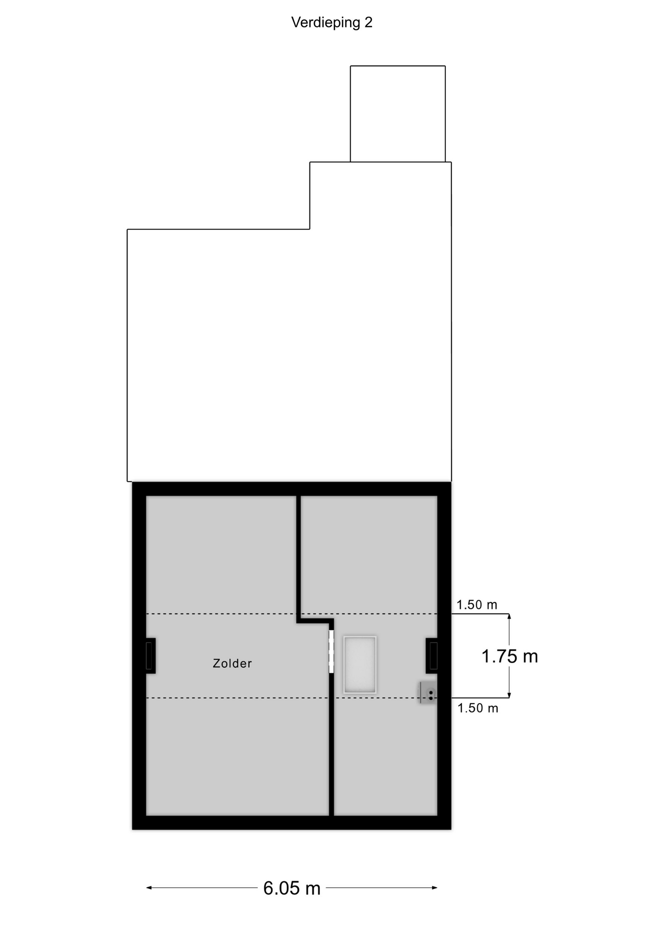
Tweede verdieping, bereikbaar middels vlizotrap: bergzolder, alwaar standplaats cv-ketel en omvormer zonnepanelen.
Belangrijke informatie voor de koper.
Verkoopinformatie.
Bovenstaande informatie is met zorg samengesteld. Er kunnen echter geen rechten aan worden ontleend, verkopers noch verkopend makelaar kunnen aansprakelijk worden gehouden voor eventuele onjuistheden. Indien bepaalde informatie voor u van wezenlijk belang is, dan adviseren wij u deze op juistheid te (laten) controleren. Alle opgegeven maten en oppervlakken zijn indicatief.
Schriftelijkheidsvereiste.
Ter bescherming van de belangen van zowel koper als verkoper, wordt uitdrukkelijk gesteld dat een koopovereenkomst met betrekking tot deze onroerende zaak eerst dan tot stand komt nadat zowel koper als verkoper de koopovereenkomst hebben getekend (“schriftelijkheidsvereiste”). Tot het tijdstip van ondertekening door beide partijen voornoemd, zullen partijen jegens elkaar geen enkele verplichting hebben.
Waarborgsom of bankgarantie.
Koper dient binnen een week na het onvoorwaardelijk worden van de koopovereenkomst een waarborgsom te storten bij de notaris of een bankgarantie te stellen ten bedrage van tien procent van de koopsom.
Bouwkundige keuring
Koper is te allen tijde gerechtigd om voor eigen rekening een bouwkundig onderzoek te laten verrichten, dan wel andere adviseurs te raadplegen teneinde een goed inzicht te verkrijgen in de staat van onderhoud of andere aspecten van de onroerende zaak. Koper dient bij het doen van een bod wel direct aan te geven of hij een dergelijk onderzoek wenst.
Meetinstructie
De bij de inmeting gehanteerde Meetinstructie is gebaseerd op de NEN2580. De Meetinstructie is bedoeld om een meer eenduidige manier van meten toe te passen voor het geven van een indicatie van de gebruiksoppervlakte. De Meetinstructie sluit (mede als gevolg van het gegeven dat Fidus Makelaardij geen professioneel inmeter is) verschillen in meetuitkomsten niet volledig uit, door bijvoorbeeld interpretatieverschillen, afrondingen of beperkingen bij het uitvoeren van de meting.
Overname (huur)contracten
Indien er in de woning huurtoestellen aanwezig zijn zoals CV-Ketel, boiler of zonnepanelen etc. dienen deze overgenomen te worden door de koper.
De aan kopers verstrekte informatie is door ons met de nodige zorgvuldigheid samengesteld. Onzerzijds wordt echter geen enkele aansprakelijkheid aanvaard voor enige onvolledigheid, onjuistheid of anderszins, dan wel de gevolgen van de door derden verstrekte informatie m.b.t. de onroerende zaak. Hieronder vallen o.a. meetrapporten, plattegronden, fotomateriaal, video's, energielabel, bestemmingsplankaarten, bodeminformatie, verstrekte vergunningen etc. etc. Alle weergegeven maten en oppervlakten zijn indicatief.
Lees de volledige omschrijving
Kenmerken
Overdracht
Status
Beschikbaar
Vraagprijs
€ 274000 k.k.
Aanvaarding
In overleg
Bouwvorm
Soort object
Woonhuis
Soort woning
Eengezinswoning
Type woning
Tussenwoning
Bouwjaar
1950
Bouwvorm
Bestaande bouw
Indeling
Woonoppervlakte
112 m²
Perceeloppervlakte
177 m²
Overige inpandige ruimte
18 m²
Inhoud
406 m³
Aantal kamers
4
Energie
Energieklasse
A
Energie einddatum
06-03-2036
Isolatie
Dakisolatie, muurisolatie, vloerisolatie, dubbel glas
Warmwater
Cv ketel
Verwarming
Cv ketel
Buitenruimte
Tuin
Achtertuin, voortuin
Parkeergelegenheid
Garage
Geen garage
Parkeerfaciliteiten
Openbaar parkeren
Dak
Soort dak
Zadeldak
Overig
Permanente bewoning
Ja/Nee
Onderhoud binnen
Goed tot uitstekend
Onderhoud buiten
Goed tot uitstekend
Huidige bestemming
Woonruimte
Voorzieningen
Voorzieningen
Rolluiken, tv kabel, airconditioning
Kadastrale gegevens
Gemeente
Geleen
Perceelnummer
2001
Oppervlakte
177 m²
Eigendomssituatie
Volle eigendom
Bekijk alle kenmerken
Beheer toestemming
Om de beste ervaringen te bieden, gebruiken wij technologieën zoals cookies om informatie over je apparaat op te slaan en/of te raadplegen. Door in te stemmen met deze technologieën kunnen wij gegevens zoals surfgedrag of unieke ID's op deze site verwerken. Als je geen toestemming geeft of uw toestemming intrekt, kan dit een nadelige invloed hebben op bepaalde functies en mogelijkheden.
Functioneel
Altijd actief
De technische opslag of toegang is strikt noodzakelijk voor het legitieme doel het gebruik mogelijk te maken van een specifieke dienst waarom de abonnee of gebruiker uitdrukkelijk heeft gevraagd, of met als enig doel de uitvoering van de transmissie van een communicatie over een elektronisch communicatienetwerk.
Voorkeuren
De technische opslag of toegang is noodzakelijk voor het legitieme doel voorkeuren op te slaan die niet door de abonnee of gebruiker zijn aangevraagd.
Statistieken
De technische opslag of toegang die uitsluitend voor statistische doeleinden wordt gebruikt.De technische opslag of toegang die uitsluitend wordt gebruikt voor anonieme statistische doeleinden. Zonder dagvaarding, vrijwillige naleving door je Internet Service Provider, of aanvullende gegevens van een derde partij, kan informatie die alleen voor dit doel wordt opgeslagen of opgehaald gewoonlijk niet worden gebruikt om je te identificeren.
Marketing
De technische opslag of toegang is nodig om gebruikersprofielen op te stellen voor het verzenden van reclame, of om de gebruiker op een site of over verschillende sites te volgen voor soortgelijke marketingdoeleinden.